Перфорированный крепеж и гвоздевая пластина для деревянного и каркасного домостроения

+7 8332 25-45-90
+7 922 989-84-79

sale@steelcap.ru


Steelcap - вконтакте  

Статьи

Пресс для МЗП своими руками
В 2014 году, запуская производство гвоздевой пластины, мы выпустили и две модели прессов для запрессовки МЗП. Но эти изделия были для нас технологически очень неудобны, для их производства приходилось закупать нехарактерные для нас материалы (швеллер, лист 15 и 20 мм), нанимать сварщиков, возить их на покраску… При этом спрос на эти прессы был невелик. И мы прекратили их производство.
Однако, с ростом популярности технологии «ферма на МЗП», спрос на мобильные и недорогие прессы стал расти. Стабильно 2-3 раза в месяц наш отдел продаж принимаем звонки от желающих приобрести такое устройство. Однако, вновь начинать их производство мы не станем. Вместо этого покажем, как можно сделать пресс для МЗП своими руками.

ForumHouse – источник знаний

Самый крупный форум, посвященный самостоятельному строительству, не обошел технологию гвоздевых пластин стороной. Самостоятельному изготовлению деревянных ферм посвящена не одна сотня страниц этого сайта. В том числе, там обсуждали и самодельные прессы. Но, не зная где искать, найти такой куче информации нужные чертежи нереально. Рабочие варианты прессов делали два форумчанина – Tim1313и Koma. Ссылки на их устройства тут и тут. Эскизы и фото ниже.

Пресс для гвоздевой пластины.png

Пресс МЗП.png

Опыт наших покупателей

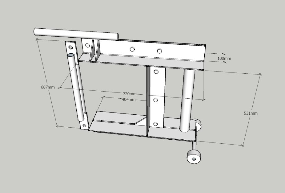
Удачную конструкцию пресса собрал наш клиент. Полная информация о его «Красной Берте» (наименование автора!) можно найти на его странице в Инстаграм Эскиз с размерами ниже.

Гвоздевая пластина пресс своими руками.png


Да, по итогу работы пресс был сломан. Но поломка произошла при запрессовке пластин запредельных размеров – 250х600 мм. К слову, даже заводские стационарные прессы с трудом справляются с такими МЗП.

Обобщая все идеи

Рассмотрев вышерассмотренные конструкции, нетрудно заметить, они похожи. Гидравлический домкрат на 20-30 тонн, С-образная скоба из швеллера или квадрата, две пластины толщиной 20 мм. Обязательный элемент – «замыкатель», съемная шпилька соединяющая консоль пресса с его основанием. Без него любая, даже самая жесткая, скоба будет деформирована при работе.

Как видите, ничего сложного в изготовлении пресса для МЗП нет. Любая мастерская с болгаркой и сварочным аппаратом сможет его изготовить. А если у вас появятся вопросы, не стесняйтесь, звоните в наш отдел продаж. Наши специалисты вам помогут.


Яндекс.Метрика