Перфорированный крепеж и гвоздевая пластина для деревянного и каркасного домостроения
Строительная технология, применяющая деревянные фермы на МЗП, завоевывает всё бОльшую популярность. Её преимущества уже оценили многие застройщики. Как частники, так и строительные фирмы.
Однако, те, кто сталкиваются с подобными конструкциями впервые, часто не знают, как правильно рассчитать деревянную ферму.
Специфика расчета такова, что сделать расчет на бумаге, используя формулы сопромата, не удастся. Поможет только специализированное программное обеспечение. Но как получить к нему доступ? Где его искать? И как получить достоверные результаты? О разных способах сделать или заказать расчет мы сегодня подробно расскажем. С ценами, сроками и ссылками.
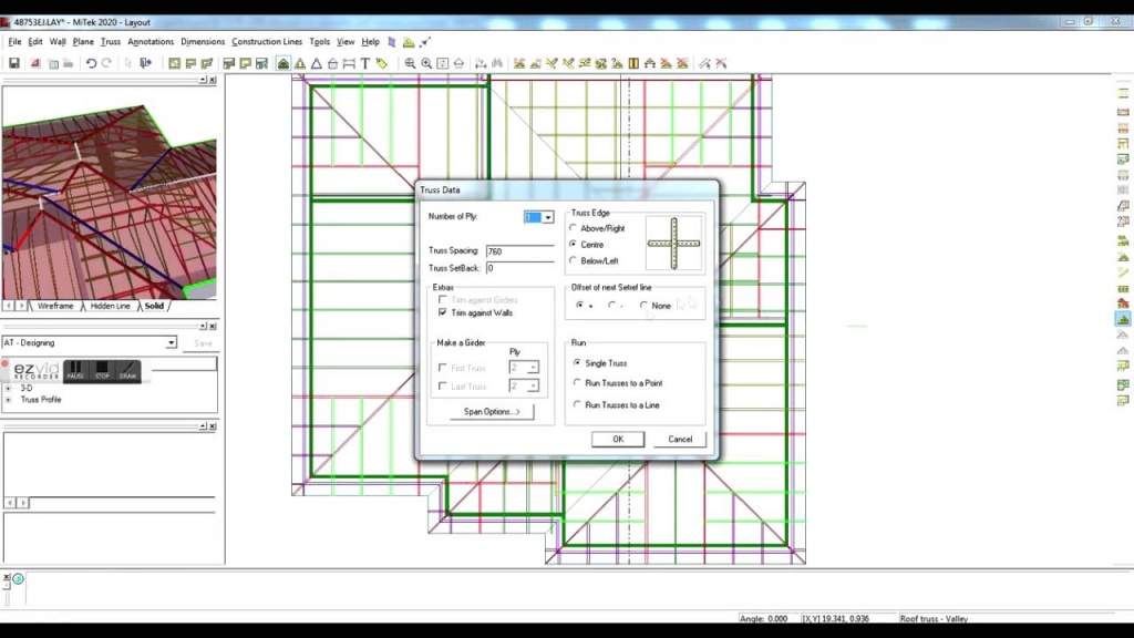
Программ, способных рассчитать деревянную ферму на металлозубчатых пластинах пока две: американская MiTek 2020 и российская APM Civil Engineering. Купить официально первую просто невозможно (её передают только официальным партнерам), стоимость второй – от 120 тр. Поэтому в ход идут демоверсии либо «ломаные» программы из интернета.
Видео, как сделать расчет можно посмотреть на YouTube. Поверхностное обучение и конструирование самих ферм занимает обычно 2-3 недели за домашним компьютером. Однако, полученный результат часто сомнителен из-за неизвестного происхождения программы расчета.
Цена вопроса: 0 рублей
Срок расчета: 2-3 недели
Следующий вариант – обратиться в строительные компании, уже занимающиеся производством деревянных ферм. У них уже куплены лицензионные программы, у них уже есть опыт проектирования, они уже корректируют расчет под особенности российского пиломатериала и наши гвоздевые пластины.
Пример подобной компании – строительная фирма «ДКаркас маркет». Как понятно из названия, их специализация – изготовление домокомплектов для деревянного домостроения. Но и отдельные расчеты они тоже выполняют. Преимуществом этого способа является то, что работы выполняет дипломированный инженер-строитель. То есть за качество расчета можно уже не волноваться.
Цена вопроса: около 5000 рублей
Срок расчета: от 1 дня
А если вам необходимо обсчитать очень сложную кровлю? Или вы задумали использовать комбинированные маталло-деревянные фермы? Или вы строите здание по госзаказу и контролирующий орган требует инженерные расчеты от лицензированного строительного института? Как тогда быть?

В таком случае, вам прямая дорога в город Королёв к разработчикам российского программного комплекса - Научно-технический центр «АПМ» (НТЦ АПМ). Они с 1992-го года занимается созданием компьютерных программ, в том числе прочностных расчетов. Если вы заказываете расчет у них, результатам будет официальный документ на 20-50 страниц с печатями и подписями ответственных лиц.
Цена вопроса: от 20000 рублей
Срок расчета: от 5 рабочих дней
Но, какой бы вы не выбрали способ сделать расчет ферм, гвоздевыми пластинами для их производства мы вас обеспечим! Обращайтесь в наш отдел продаж.
Копирование и размещение на сторонних ресурсах любой медийной информации (текст, фото, звук), представленной в данном материале, разрешено только с указанием активных ссылок на наш источник https://www.steelcap.ru